Hokuula
107 Poloula St Lot 62, Makawao/Olinda/Haliimaile, HI
Listing Price: $1,655,000
4
Beds
3½
Baths
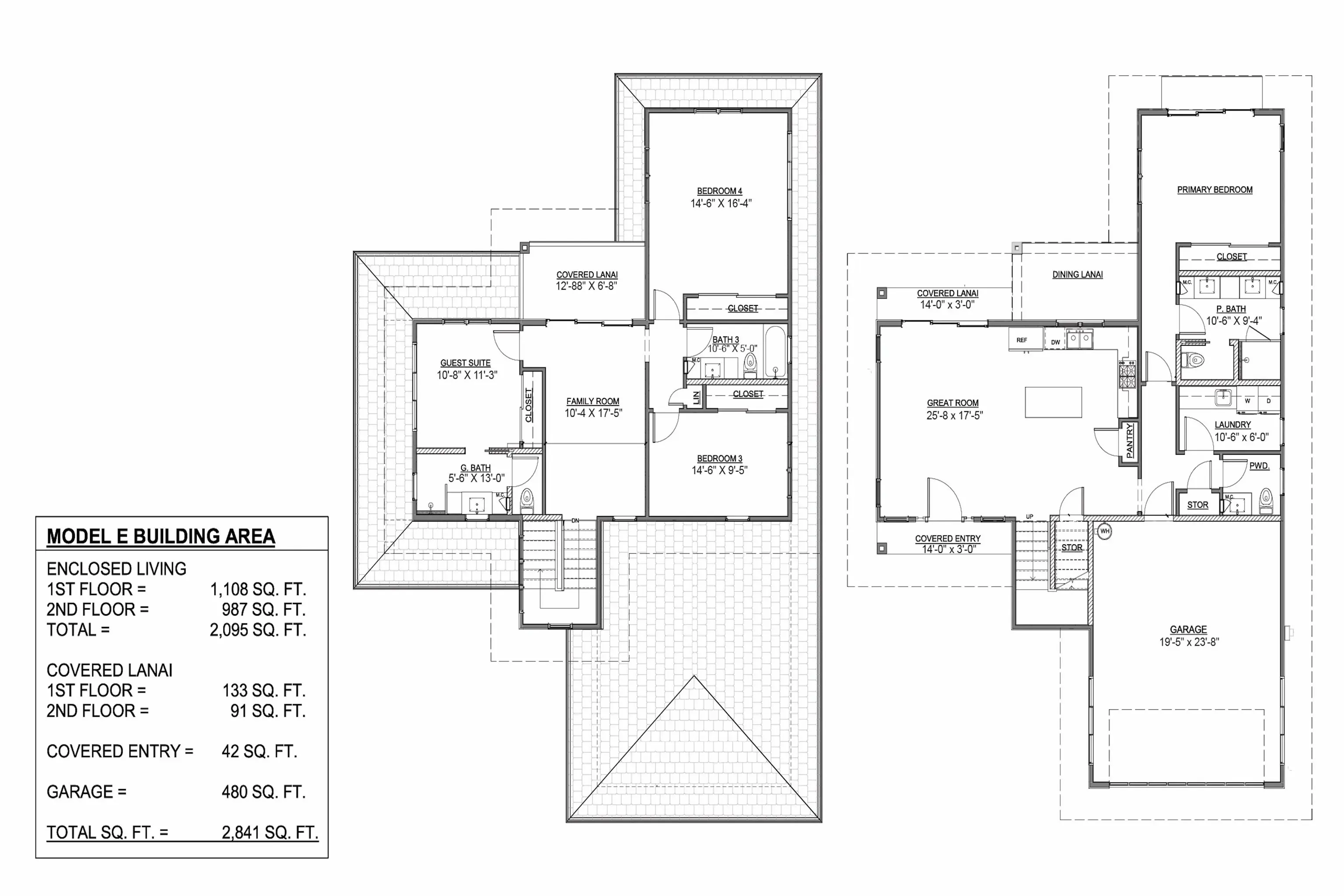
2,095
Square feet
0.22
Acres
About 107 Poloula St Lot 62
Discover Hokuula in the quaint town of Haliimaile, nestled on the gentle slopes of Haleakala, overlooking Maui’s world-renowned Northshore coastline. Expansive ocean and mountain views will greet you from this soon to be Upcountry community of 196-single family homes. Featuring contemporary architecture with six unique, 4-bedroom models on lots of approximately 7,500 to 10,000 square feet. Hokuula offers a variety of diverse floor plans in single and two-story designs. In addition, ohana dwellings are available on various lots, providing even more versatility. Each home has been thoughtfully designed. This luxuriously laid out E floor plan has 4 bedrooms and 3.5 bathrooms. Features include an open floor plan, 9 foot ceilings, covered lanai, attached two car garage. Highlighted amenities consist of stainless-steel appliances, double paned windows, soft close cabinetry. The home includes the following developer upgrades: Mitsubishi Split System Air Conditioning throughout the house, GE Café Appliances, Package 2 Interior, Front & Back Landscaping, Gutters, and Stamped Driveway. Located just a few minutes from the modern conveniences of Kahului as well as the quaint charms of Paia and Makawao. This is truly a unique opportunity to own your piece of paradise on Maui, a wonderful place to call home. Developer reserves the right to modify floor plans, elevations, specifications, features, and prices without prior notice. Square footage and room sizes are approximate. All renderings and floor plans are conceptual and are not intended to be an actual depiction of the home, driveway, or landscaping. Prices vary between floor plan and lot selections along with view corridors. Buyer and Buyer's Agent to conduct due dilig
View Similar Properties For Sale
Makawao Homes For Sale107 Poloula St Lot 62
This property for sale at 107 Poloula St Lot 62 is listed for $1,655,000.00 and has been on the market for 185 day(s). It is a Fee Simple property located in Hokuula in Makawao/Olinda/Haliimaile on Maui. It features 4 bedroom(s) and 3.50 bathroom(s) with 2095 square feet of living space. To ask a question or to schedule a showing of this property or any other property on Maui, please contact Evan Harlow with Coldwell Banker Island Properties at 808-214-4799 or email Evan directly at evan@mauieliteproperty.com.
Lot 62 Facts & Features
| MLS® # | 400452 |
|---|---|
| Sold Price | $1,655,000 |
| Listing Price | $1,655,000 |
| Bedrooms | 4 |
| Bathrooms | 3.50 |
| Square Footage | 2,095 |
| Land Tenure | Fee Simple |
| Acres | 0.22 |
| Year Built | 2024 |
| Type | Residential |
| Sub-Type | Single Family Residence |
| Status | Closed |
| County Tax Records | View Records |
Community Information
| Address | 107 Poloula St Lot 62 |
|---|---|
| Area | Makawao/Olinda/Haliimaile |
| Subdivision | Hokuula |
| City | Makawao/Olinda/Haliimaile |
| State | HI |
| Zip Code | 96768 |
Amenities
| Utilities | Sewer Connected |
|---|---|
| Parking | Garage, Garage Door Opener |
| # of Garages | 2 |
| View | Mountain/Ocean |
| Is Waterfront | No |
| Waterfront | None |
| Has Pool | No |
Interior
| Appliances | Dishwasher, Disposal, Dryer, Microwave, Range, Refrigerator, Solar Hot Water, Washer |
|---|---|
| Fireplace | No |
| Stories | Two |
Exterior
| Exterior Features | Lawn Sprinkler |
|---|---|
| Roof | Asphalt/Comp Shingle |
| Foundation | Slab |
Additional Information
| Date Listed | December 5th, 2023 |
|---|---|
| Date Sold | June 7th, 2024 |
| Days on Market | 185 |
| Short Sale | No |
| RE / Bank Owned | No |
| HOA Fees | 150 |
| HOA Fees Freq. | Monthly |
Listing Details
| Office | Island Sotheby's International Realty(L) |
|---|
